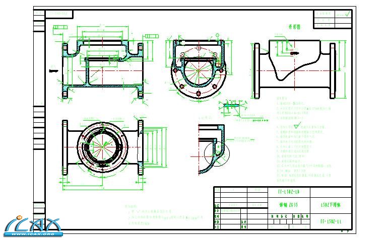
转眼使用CAXA电子图板已经有八、九个年头了,在这几年和CAXA的多次接触中,我与CAXA电子图板结下了不解之缘。 我于1994年退休,今年73岁了,退休前在航天科工集团第三研究院从事导弹总体设计工作。当时电脑还不像现在这样普及,我们绘图还是使用铅笔和绘图板,绘图慢不说,修改起来也很麻烦,看见年轻人使用计算机绘图,我们还是比较羡慕的。94年退休后,接受航天测控公司的聘用,自己买了电脑,也就萌生了用计算机绘图的念头。在那个时候,国内正版绘图软件还是比较少的,开始使用的是一种国产软件,相当于AUTOCAD的汉化版本,操作复杂,键盘输入命令较多,需要记忆大量命令,开始上手比较麻烦。后来单位买了一套CAXA电子图板,有同事推荐我试试这个软件,感觉还不错。我就买了一套,当时叫“华正电子图板”,应该是最早的一个版本了吧,我既要学习电脑操作,又要学习软件的使用方法,在我64岁时,学习一天就能用电子图板绘制简单的图形了,看着又干净,又标准的图纸,心里真是高兴。在航天测控公司,就使用CAXA进行控制柜、仪器设备安装等机构的设计以及新产品设计。后来另一家公司聘用我,设计燃气紧急切断阀,开发新产品,以下是我设计的燃气紧急切断阀图纸。 从华正电子图板到电子图板XP、2000以及2005版本到现在的2007,我一直是CAXA电子图板的忠实用户,这不仅仅因为它是拥有自主产权的国产软件,更重要的是它使用方便、顺手、简单、明了,利用键盘和鼠标操作都比较灵活,界面也很友好,不需要记忆很多命令。CAXA的服务人员也很热情周到,有时候我在安装和使用遇到问题时我都会跟他们电话联系,通过他们的帮助,我还学到了很多电脑方便的知识。CAXA的服务人员还会不定期的跟我联系,询问我的使用情况。 现在不但我使用CAXA电子图板绘图,还把它推荐给我的老同事和年轻同事,还把它当礼物赠友人,最后希望CAXA电子图板越做越好,更加适合中国工程师。 |
QQ 咨询|手机版|联系我们|iCAx开思网
( 粤ICP备2025491344号-1 ) 
GMT+8, 2025-11-11 09:21 , Processed in 0.028460 second(s), 8 queries , Gzip On, Redis On.
Powered by Discuz! X3.3
© 2002-2025 www.iCAx.org