找回密码 注册 QQ登录
开思网工业级高精度在线3D打印服务

iCAx开思网

[Solid Edge入门] 概述二

2011-5-18 15:24| 查看: 63778| 评论: 0|原作者: 维罗希迪|来自: 上海维罗希迪软件技术有限公司

摘要: 使用鼠标使用鼠标左键可完成以下操作:• 点击某个元素即可选择该元素。• 通过拖曳选择框可选择多个元素。• 拖曳某个选中的元素。• 使用点击或拖曳方法绘制某个元素。• 选择某个命令。 ...
基本文件操作
基本文件操作

创建文档和使用模板

您可以采用以下方法新建文档:

• 在Solid Edge启动屏幕的Create(创建)中,您可点击某个链接,使用该环境的默认模板打开一个新文档。

• 在Application(应用程序)菜单上,您可选择 New(新建)命令,然后从New(新建)对话框中选择该环境的专用模板。

Solid Edge的每一个环境都提供英制和公制模板:

• 装配

• 工程图

• 零件

• 钣金

• 焊接件

Solid Edge还提供支持其他标准(例如DIN、JIS、ESKD和GB)的模板。

创建、修改和保存新文档

在创建新文档时,软件提供一个临时文件名,文件扩展名对应于当前所处环境。例如,如果使用默认模板新建一个零件文档,该文档获得一个临时文件名并以.par作为文件扩展名。

对文档的任何修改都临时保存在内存中。为保留对文档的修改,必须保存文档。首次保存文档时,可使用Save As(另存为)对话框定义一个永久文件名和文件夹位置。

以模板作为起点

无论采用什么方法创建文档,第一步都是确定文档模板。模板是一个为生成新文档所需的文本、格式、几何结构、尺寸、测量单位及样式提供默认设置的文档。

您可以编辑标准模板的属性集合,使其包括某些属性及管理文档所需的附加自定义属性的默认值。例如,为了更方便地创建符合所在公司标准的图纸,您应考虑定义一个自定义工程图文档模板,其中定义了所在公司的尺寸标注和注释标准。

将属性文本提取到模板标题栏中

属性文本与当前文件中的属性以及当前文件附加模型中的属性关联。您可使用属性文本串获取文件或者模型相关数据并在图框模板或者标题栏中显示。使用属性文本可确保信息随时更新,无需手动编辑。

所有标准的Solid Edge文件属性(例如标题和文件名)都可作为属性文本。此外还可使用由文件中数据(例如活动图纸页与页数)计算所得的属性。公司、项目、版本号、文档状态及上次打印日期等属性可直接提取到图框模板的标题栏中。

如需进一步了解图块中的属性文本,请参见帮助主题:使用图块。如需了解如何创建和编辑常规属性文本,请参见“使用属性文本”。

模板文件夹

在为所在公司创建自定义模板时,可将其保存在Solid Edge ST2\Template文件夹下,也可创建自己的公司专用模板文件夹。如果创建公司专用的模板文件夹,该文件夹应为Solid Edge ST2\Template文件夹下的子文件夹。例如,如果公司的模板文件夹名称为Custom Templates,该文件夹的路径应为Solid Edge ST2\Template\CustomTemplates。在Solid Edge ST2\Template文件夹下创建子文件夹时,New(新建)对话框中添加一个与该子文件夹同名的选项卡。这可方便公司使用自定义模板。



使用AutoCAD颜色和模板

Solid Edge工程图环境提供了一个专为模拟AutoCAD环境设计的颜色方案。AutoCAD模型颜色方案将图纸页颜色设置为黑色,同时还为高亮显示状态、选中元素、禁用元素和句柄设置了默认颜色。在Solid Edge图纸上可绘制AutoCAD .dxf和.dwg文件,这些文件将采用AutoCAD颜色方案和模板颜色显示。

颜色方案按照图纸类型设置:工作图纸、2D模型图纸和背景图纸。为了保证图形显示的一致性,每一种图纸都应选择相同的颜色方案。如需选择和应用AutoCAD颜色方案,首先显示工作图纸或者2D模型图纸,然后在Solid Edge Options(Solid Edge选项)对话框的Colors(颜色)页上,从Color Scheme(颜色方案)列表中选择AutoCAD Model(AutoCAD模型)。

注:
更改颜色方案可能导致所有图形消失。如果出现这种情况,将颜色方案恢复到Solid Edge默认设置。然后使用选中元素快捷菜单上的Properties(属性)命令尝试逐个替代颜色,或者使用(视图)选项卡上的Styles(样式)命令进行全局修改。

此外还有一些Solid Edge图框图块文件支持AutoCAD颜色方案。这些图块文件包含不同尺寸的图框以及默认标题栏。在选择Drawing Area Setup(绘图区域设置)命令时,可选择这些支持AutoCAD的图框并将其放置在2D模型图纸上。

Quicksheet(快速图纸)模板

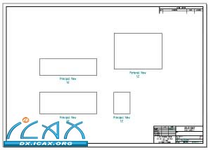
对于Solid Edge 3D 模型,Quicksheet(快速图纸)模板是一种可用于快速生成3D视图的特殊模板。Quicksheet(快速图纸)模板是一种包含未链接模型的图纸视图的图纸模板。在使用Quicksheet(快速图纸)模板打开某个文档时,显示图形类似下图:



可将某个模型从Library(库)停靠窗口或者Windows Explorer拖放到模板上,此后视图中增加该模型。

如需创建Quicksheet(快速图纸)模板,按照所需类型和属性配置图纸视图,然后选择Create Quicksheet Template(创建快速图纸模板)命令。此时显示一个消息提示框,建议您在清空图纸视图之前保存当前工作。点击Yes(是)后即可用所需名称和位置保存文件,此后即可使用Quicksheet(快速图纸)模板。在创建Quicksheet(快速图纸)模板时,图纸中的所有图纸视图均被清空,包括零件清单。但几乎所有视图属性,包括常规属性、文本与颜色属性,以及注释属性均可保留。

如需进一步了解图纸视图的创建,请参见帮助主题:图纸视图创建。
3

赞一下!

刚表态过的朋友 (3 人)

3D打印手板模型快速制作服务,在线报价下单!

QQ 咨询|手机版|联系我们|iCAx开思网 ( 粤ICP备2025491344号-1

GMT+8, 2025-12-28 01:43 , Processed in 0.031463 second(s), 8 queries , Gzip On, Redis On.

Powered by Discuz! X3.3

© 2002-2025 www.iCAx.org

返回顶部