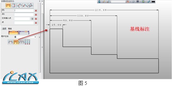
在三维CAD设计过程中,CAD图纸是不可或缺的。本次三维CAD技巧主要跟大家分享中望3D工程图模块中的实用小技巧,通过中望3D的易学易用特点,可以快速掌握这些CAD操作。中望3D提供更智能化的工程图操作,并且支持多种标准的CAD图纸,通过熟悉本文的CAD工程图技巧,对于工程师迅速出CAD图能够达到事半功倍的效果! 1. 自定义图框 图框是每张图纸所必须的。在中望3D中可以使用常规模式,在工程图模块中绘制线条、添加文字、添加图片等等操作来完成图框,但这种做法的效率很低。对于公司来说,往往都已经在二维CAD,如中望CAD中已有了相关的标准图框,如何直接利用而不需要重复劳动?中望3D给出了很好的解决方法——直接导入(图1)! 首先,创建自己的模版并重命名,如my A4(H)(扩符中的H代表是A4横向的图纸),然后修改图幅大小至所需尺寸(图2)。 输入先前已保存好的DWG图纸并移动位置即可将已有的图框模板方便地转换为中望3D工程图模板(图3)。 2. 将样条曲线转换成直线和圆弧(图4) 在模具设计或是机械设计中,往往会出现一些样条曲线,同时这些样条曲线所在的位置需要使用线切割加工(如模具中的镶件或是电极)。但是目前大部分的线切割机床都无法识别样条曲线。 目前在工厂常用的方法是由线切割操机员将DXF或是DWG图纸放大,然后由人工一段一段地绘制直线或是圆弧(因为线切割机床只能识别直线或圆弧),尽量逼近样条曲线。工作量大而且也有误差。 而在通过中望3D的“转换为圆弧/线”功能便可轻松处理!通过这个功能,可将样条曲线转换为直线或圆弧,同时通过公差设定,能够准确得得到所需精度的编程线条。 3. 快速标注 标注在出图中是耗费时间最多的一项工作。在标注方面,中望3D能非常快速地做出基线标注、连续标注、坐标标注等标注类型,可以让工程师的出图效率大大提高。而且相关命令的操作非常简便(图5,图6,图7)。 4. 订料尺寸 就机械设计或是模具设计而言,零件都需要进行加工。要加工则涉及到订料的尺寸,订多大的料才合适,才节约成本。如果零件是规则的矩形或是圆形,订料尺寸会比较好计算。但是往往在实际设计过程中,零件大多是不规则的。对此中望3D提供了非常高效的解决方案,可以快速得出零件所需的胚料尺寸。同时此尺寸可以在出BOM表时自动得出,提高整个设计效率(图8)。 5. 符号库 在二维CAD中,大家对块应该很熟悉。块在图形绘制过程中有着非常重要的作用。那么在中望3D工程图中是否有类似的功能呢?答案是肯定的。在中望3D中有符号库的功能。用户可以将工作中用到的技术说明、特殊符号等制作成符号,定义插入点,并加入到符号库中(图9,图10)。 这些添加到库中的符号都被保存在一个零件中,然后将此零件(范例中为“图库.z3”)保存到硬盘的任意位置。在配置选项中,将符号库路径指向保存的文件,则在以后任意的工程图中使用“插入”符号的功能都能使用到先前已经创建好的符号或是文字说明,可以有效提高作图效率(图11)。 图11 熟悉了中望3D的三维CAD工程图技巧后,欢迎大家多学多用,才能更快速地掌握三维CAD软件的操作,也欢迎大家来中望技术社区(www.zwcad.com/jishushequ)一起探讨三维CAD的设计技巧,共同提升三维CAD设计能力! |
QQ 咨询|手机版|联系我们|iCAx开思网
( 粤ICP备2025491344号-1 ) 
GMT+8, 2026-5-30 09:23 , Processed in 0.050980 second(s), 9 queries , Gzip On, Redis On.
Powered by Discuz! X3.3
© 2002-2025 www.iCAx.org