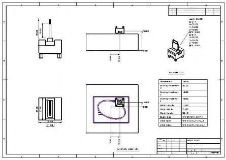
第十一步-电极绘图 1. 创建电极图 在电极特征树中选择预出绘图的电极特征,点击鼠标右键,在弹出的即时菜单中选择 电极绘图选项,或者从电极主菜单中选择创建电极绘图选项。 可以按住 Ctrl 键一次选择多个电极文件,对于每个电极文件,均将产生相应的电极图纸。 现在出现如下的提示信息 打开图档 Cavity- EL-001_绘图.elt: 对 Iso 视图进行放大,观察电极相关参数。 观察图纸的细节,放大位于图框右侧的名细: 保存图纸,关闭绘图功能。 注意: 电极绘图是根据绘图模板生成。绘图模板的设置可以在预设置中电极选项下查看: 上图所显示的路径 CimatronE\Data\Templates\Combined drawing.tpl 即为 Cimatron 默认的 电极绘图模板文件 Combined drawing.tpl 的路径。而设计者也可以定义适合自己的模板, 并调用自己设计好的模板。 2.创建模板 新建绘图文件: 选择图框设置选项,设置为 A4 图框,并确认。 在 A4 图框内将各视图按图示摆放: 在标题栏上进行点击,为零件名称添加文字: 为包容轮廓,在 Simple 1 视图上点击鼠标右键,选择激活视图选项 使用屏幕右侧的草图工具,在视图周围建立一个包容矩形,如下图所示: 退出草图绘制,对剩余的三个视图进行同样的操作: 模板绘制完毕,选择主菜单文件/另存为/保存为模板选项,并设定模板名称为 Electrode, 并保存。 应用模板到电极图纸:选择预设置中电极选项: 选择上图的改变模板选项,并选择刚创建的个人模板即可。 |
QQ 咨询|手机版|联系我们|iCAx开思网
( 粤ICP备2025491344号-1 ) 
GMT+8, 2026-5-30 09:24 , Processed in 0.032900 second(s), 9 queries , Gzip On, Redis On.
Powered by Discuz! X3.3
© 2002-2025 www.iCAx.org