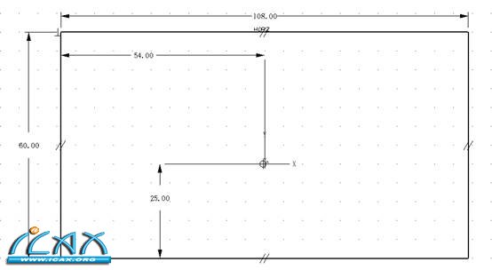
相机壳 1. 在XY平面上创建草图1,草图轮廓及标注如图1所示。 图1 图2 3. 在XZ平面上创建草图2,草图轮廓和标注如图3所示。 图3 |
QQ 咨询|手机版|联系我们|iCAx开思网
( 粤ICP备2025491344号-1 ) 
GMT+8, 2026-2-12 02:25 , Processed in 0.047269 second(s), 11 queries , Gzip On, Redis On.
Powered by Discuz! X3.3
© 2002-2025 www.iCAx.org