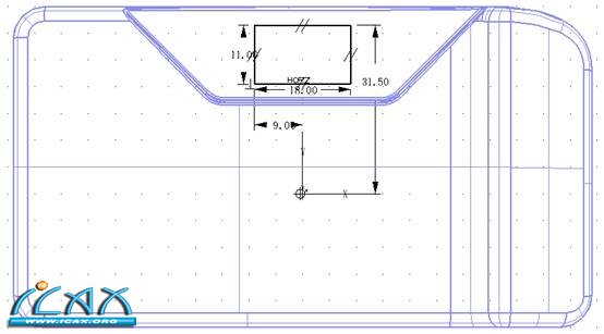
15. 对实体添加圆角,圆角边如图14所示,圆角直径为0.5mm 图14 16. 再次对实体进行添加圆角,圆角边如图15所示,圆角半径为0.5mm 图15 17. 在XY平面上创建草图5,草图轮廓和标注如图16所示。 图16 18. 对实体进行抽壳,开放面选择底平面,厚度为-1mm,结果如图17所示。 图17 |
QQ 咨询|手机版|联系我们|iCAx开思网
( 粤ICP备2025491344号-1 ) 
GMT+8, 2025-12-28 16:15 , Processed in 0.032277 second(s), 9 queries , Gzip On, Redis On.
Powered by Discuz! X3.3
© 2002-2025 www.iCAx.org